Back to projects
1 / 7
Completed
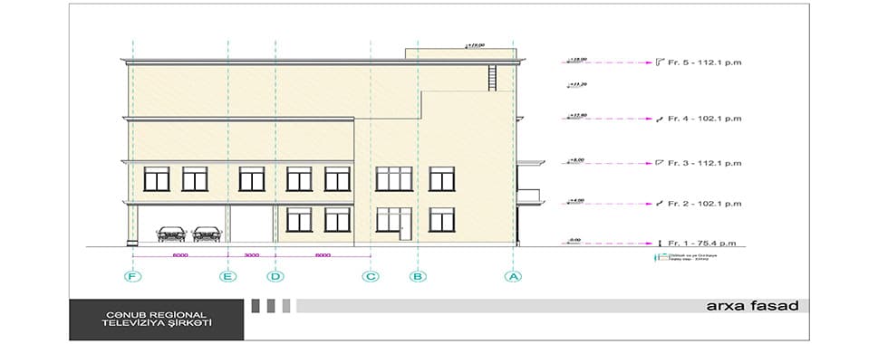
FIT-OUT & FACADE WORKS OF CENUB TV BUILDING IN LANKARAN DISTRICT
Fit out works in 6480 sqm. area: wall paper and wall painting; ceramic tiling; flooring works; facade stone cladding on 2754 sqm. area; MEP works. Location: Lankaran TV.







